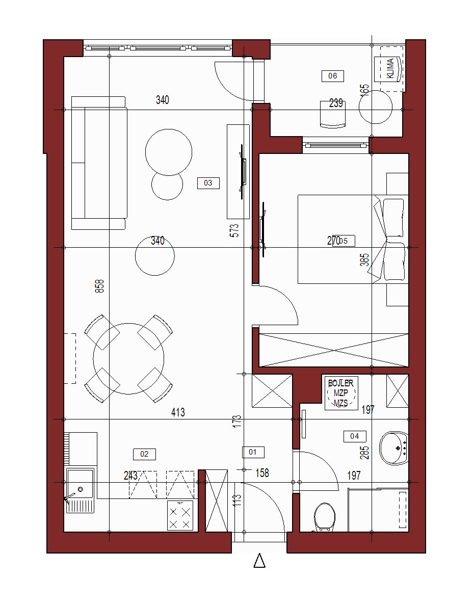
Su-Prospect Prvomajska 2

Prodajna osnova