Savršen prostor za vaše potrebe!
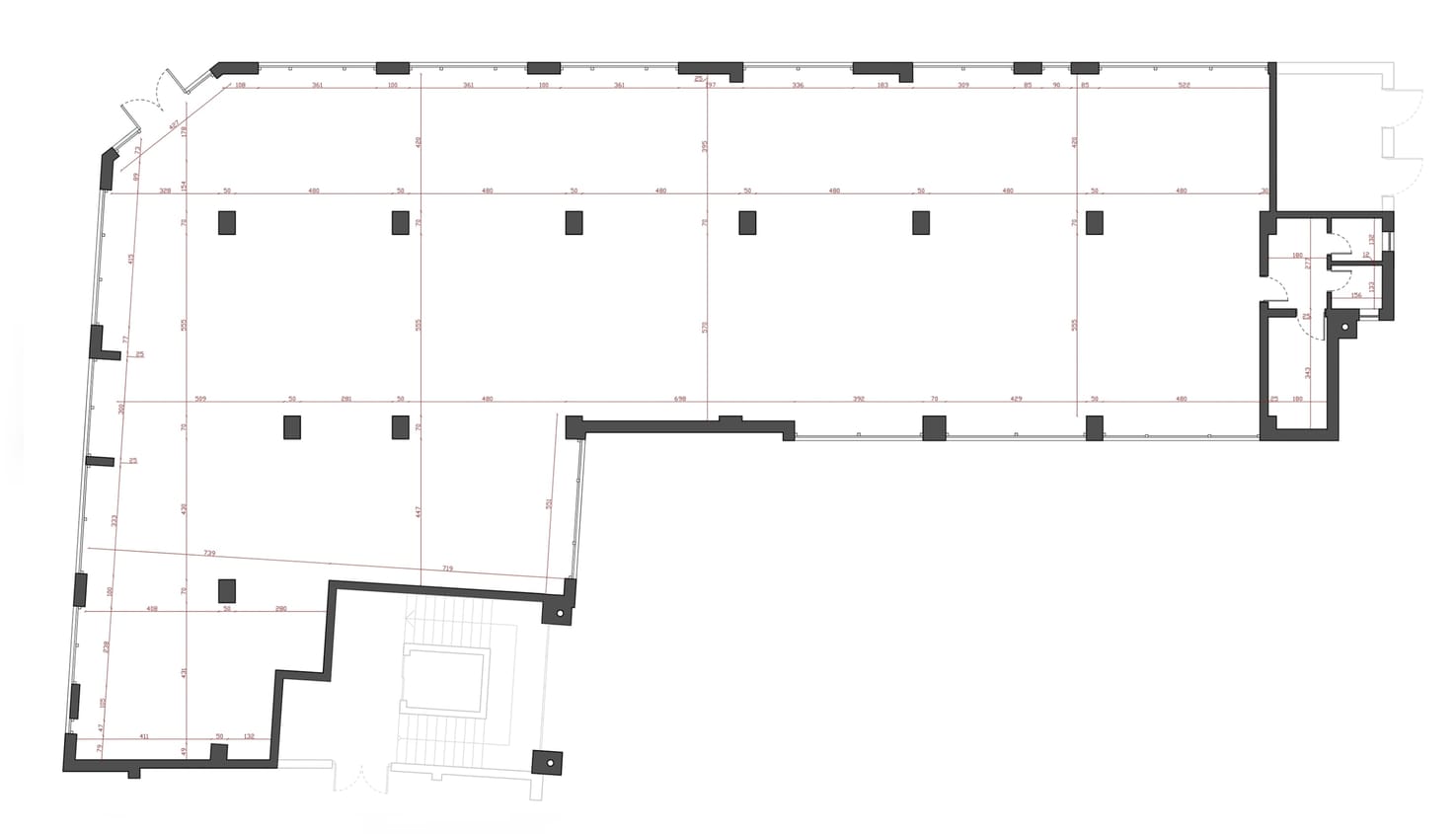
Prostrani poslovni prostor površine 510 m² koji se nalazi u samom centru grada!
Projektovan kao open space i električnim instalacijama jačine 130 kW, prostor je spreman za različite namene, kao što su privatna polikliniku, ekspozitura banke, kladionicu, prodavnica ili restoran.
Projektovan kao open space i električnim instalacijama jačine 130 kW, prostor je spreman za različite namene, kao što su privatna polikliniku, ekspozitura banke, kladionicu, prodavnica ili restoran.
Noseće konstrukcije sistema skeletni sistem pružaju Vam fleksibilnost da ovaj prostor prilagodite specifičnim potrebama.
Iskoristite ovu priliku da razvijate svoje poslovanje u samom centru Subotice!
510m2
Površina objekta
3.5m
Visina plafona
2
Funkcionalna dimnjaka
130kW
Jačina struje
Funkcionalnost prostora
predlozi:
Poslovnica
Funkcionalna rešenja • 3 predloga
Neke delatnosti zahtevaju određenu količinu privatnosti i potrebu odvajanja korisnika/kupaca od osoblja.
Podelom ovog prostora pregradnim zidovima obezbeđujete sektore namenjene korisnicima - lobi; čekaonica;
i sektore namenjene osoblju - kancelarije; sale za sastanke; ordinacije; laboratorije;
i sektore namenjene osoblju - kancelarije; sale za sastanke; ordinacije; laboratorije;
Ugostiteljstvo / Kladionica
Funkcionalna rešenja • 3 predloga
Poslovni prostor se nalazi na lokaciji koja privlači veliki broj posetilaca, čini ga idealnim za poslovne subjekte
koji žele da stvore prijatno i pristupačno okruženje koje omogućava korisnicima dug boravak u lokalu.
Maloprodaja
Funkcionalna rešenja • 3 predloga
Poslovni prostor je savršen za maloprodaju zahvaljujući svom fleksibilnom rasporedu i prostranom enterijeru. Pogodan je za različite vrste prodavnica, sa otvorenim planom koji omogućava lako postavljanje polica, izloga i kasa.Nalazi se na atraktivnoj i prometnoj lokaciji, idealnoj za privlačenje velikog broja kupaca.
Kontakt
Telefon
+381 (0)63 63-99-33
Adresa
Nikole Kujundžića 6, lamela A, 24000 Subotica
Email
info@su-prospect.rs




